Modèle Pégase pageTitle - Pierre et Création
Modèle Pégase
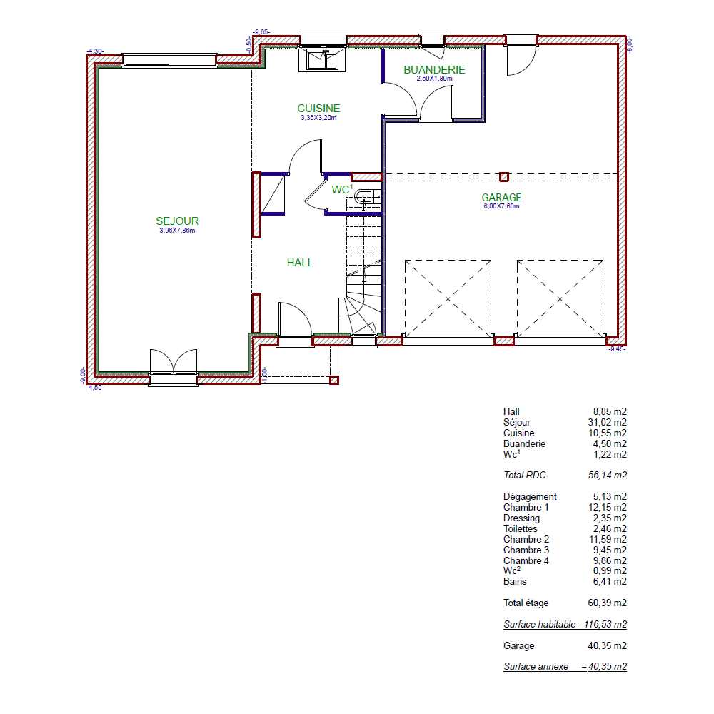
Maison avec étage
116 m2
4 chambres et double garage possible
Pégase, un modèle de maison que l’on pourrait appeler « la valeur sûre » ! D’aspect intemporelle ou plus contemporaine, elle convient à toutes les familles.
Cette maison à étage offre un double garage avec un espace de rangement et une buanderie : des pièces fonctionnelles et parfaites pour les familles.
Vous souhaitez faire évoluer vos projets de vie ? Le modèle Pégase vous le permet ! Vous pourrez agrandir votre surface grâce à des combles ou à une mezzanine ouverte sur le séjour.


Personnalisation
Toutes nos maisons sont modulables en fonction de vos souhaits. Nous comprenons que chaque famille a des besoins et des préférences uniques, c'est pourquoi nous offrons une flexibilité totale dans la conception de votre maison.
Que vous souhaitiez ajouter une pièce supplémentaire pour accueillir votre famille grandissante, modifier l'agencement intérieur pour optimiser l'espace ou choisir des matériaux spécifiques pour refléter votre style personnel, notre équipe est à votre écoute pour personnaliser votre maison selon vos envies.
Nous vous accompagnons à chaque étape du processus de personnalisation, en vous offrant des conseils d'experts et des solutions sur mesure. De la sélection des finitions intérieures à l'aménagement des espaces extérieurs, nous nous engageons à créer une maison qui vous ressemble et qui répond à toutes vos attentes.
Nos prestations incluses
- Implantation par un géomètre expert
- Essai de sol
- Fondations en béton armé
- Construction sur vide sanitaire
- Construction de la maison en briques rouges isolantes
- Tuiles 10 au m²
- Ecran de sous-toiture
- Menuiseries PVC blanc épaisseur 70 mm,
- Coffres de volets roulants intégrés à la maçonnerie au RDC
- Motorisation centralisés des volets roulants
- Isolation thermique périphérique par panneaux innovants
- Isolation sous comble laine soufflée
- Isolant sous chape polyuréthane
- Cloisons intérieures placostyl épaisseur 70mm isophoniques, salle de bain hydrofugés
- Chape lisse dans toutes les pièces habitables.
- Portes intérieures avec chambranle contre chambranle
- Electricité répondant à la norme NFC 15/100
- Chauffage au sol par pompe à chaleur
- Gestionnaire d’énergie
- Salle de bain avec douche/baignoire
- Appareils sanitaires , et robinetterie GROHE
- Travaux de raccordement aux divers réseaux publics
- Remblai périphérique
- Crépi gratté bi couleur
- Label RE 2020
Demandez les plans de ce modèle
Complétez notre formulaire en quelques clics
Plans
Découvrez les plans détaillés de notre inspiration, conçus pour allier fonctionnalité et esthétique. Chaque plan est soigneusement élaboré pour optimiser l'espace et créer des pièces harmonieuses et confortables.
Nos plans incluent les dimensions précises et la disposition des pièces, vous offrant une vision claire de l'agencement intérieur. Que vous optiez pour une maison de plain-pied, à étage ou en demi sous-sol, nos plans sont modulables et peuvent être personnalisés selon vos besoins et vos envies.
Nous vous invitons à explorer les différentes configurations possibles et à imaginer votre vie dans ces espaces. Notre équipe est à votre disposition pour vous aider à ajuster les plans et à créer une maison qui vous ressemble.
Voir d'autres inspirations







